Villa in residenziale in Via Piemonte

Porcia
Villa in residenziale in Via Piemonte
ID: 11146821 Visualizzazioni: 1 : casa.it

Prezzi

Descrizione


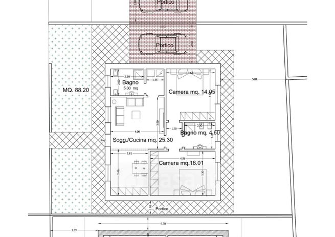
OTTIMA OCCASIONE - ASTA IMMOBILIAREFabbricato residenziale unifamiliare, isolato con circostante terreno pertinenziale tenuto a giardino, su unico piano f.
t.
e sottostante scantinato; il sottotetto è impraticabile.
L’autorimessa è interrata.
Il P.
T.
comprende: zona giorno con ingresso, cucina, soggiorno; zona notte disimpegnate, 3 camere e doppi servizi igienici.
Il P.
scantinato comprende: deposito, cucina, taverna con caminetto, servizio igienico con box doccia e ripostiglio.
Libero.
Difformità catastali/edilizie sanabili.
- Via Piemonte.
.
.
GLI AVVOCATI SPECIALIZZATI IN ASTE IMMOBILIARI DI SIMPLEX DOMUS GARANTISCONO UN ACQUISTO FACILE, SICURO ED ECONOMICO.
CHIAMA PER AVERE MAGGIORI INFORMAZIONI.
Il team di Avvocati di Simplex Domus è specializzato anche in acquisto in pre-asta e acquisto di crediti deteriorati NPL.
Comprare un immobile all’asta è una eccellente opportunità economica.
Ricordiamo che è possibile comprare un immobile all'asta tramite un mutuo e che tutti i clienti di Simplex Domus ricevono una consulenza mutuo gratuita.
Più di 1000 famiglie e aziende hanno scelto Simplex Domus.
Tutti gli annunci immobiliari hanno scopo pubblicitario e Simplex Domus non può garantire la totale esattezza o contemporaneità di tutte le informazioni riportate.
Pertanto consigliamo di visionare tutta la documentazione del tribunale tramite un nostro Avvocato specializzato.
Grazie per aver visionato il nostro annuncio.

Dettagli

  • Superficie

    175

  • Locali

    6

  • Prezzo

    104521 €

  • Città

    Porcia

  • Categoria

    Case in vendita

  • Data

    15-03-2026

€ 104.521,00
Annunci simili
Villa in residenziale in

Villa in residenziale in

450.000 € Pontedera casa.it
Villa in residenziale in

Villa in residenziale in

43.875 € Pizzighettone casa.it
Villa in residenziale in

Villa in residenziale in

200.000 € Corato casa.it
Villa in residenziale in

Villa in residenziale in

600.000 € Casalecchio di Reno casa.it
Villa in residenziale in

Villa in residenziale in

1.500 € Riposto casa.it
Villa in residenziale in

Villa in residenziale in

30.000 € Forte dei Marmi casa.it
Villa in residenziale in

Villa in residenziale in

285.000 € Garlasco casa.it
Villa in residenziale in

Villa in residenziale in

590.000 € Coriano casa.it